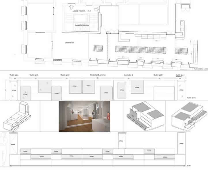
Comercial / Commercial   
Arriba / Top